HD Gerð European Hoist Electric Single-girder Yfirhafnartæki

HD Gerð European Hoist Electric Single-girder Yfirhafnartæki

European Single Girder Overhead Crane er samningur lyftibúnaður sem hannaður og framleiðir í ströngu samræmi við FEM og DIN staðalinn, sem með háþróaðri tækni og fallegri hönnun. Skipt í almenna gerð og fjöðrunartegund, sem styður notkun á evrópskum stöðlum rafmagnshöft, hentugur fyrir vinnslu á vinnustað og vörugeymslu, stórum hlutum nákvæmni samkoma og öðrum stöðum.
DaH jaw

product details

HD Gerð European Hoist Electric Single-girder Yfirhafnartæki

Stutt lýsing:

European Single Girder Overhead Crane er samningur lyftibúnaður sem hannaður og framleiðir í ströngu samræmi við FEM og DIN staðalinn, sem með háþróaðri tækni og fallegri hönnun. Skipt í almenna gerð og fjöðrunartegund, sem styður notkun á evrópskum stöðlum rafmagnshöft, hentugur fyrir vinnslu á vinnustað og vörugeymslu, stórum hlutum nákvæmni samkoma og öðrum stöðum.


image.png


Það gæti mikið notað í vélum framleiðslu, málmvinnslu, jarðolíu, petrifaction, höfn, járnbraut, almenningsflug, matur, pappír gerð, smíði, rafeindatækni iðnaður verkstæði, vöruhús og önnur efni meðhöndlun aðstæður, esp. beitt til að meðhöndla efni sem þarf nákvæma staðsetningu, stórar íhlutir nákvæmar samsetningaraðstæður.


Single-girder Overhead Crane.png

Ítarlegar myndir:

Single-girder Overhead Crane.png

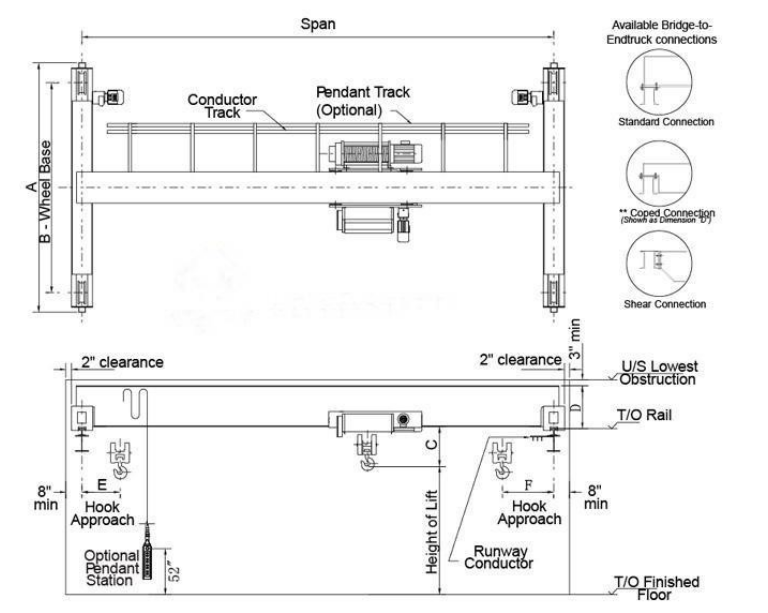
Teikning Teikning:

Single-girder Overhead Crane.png

Tæknilegar þættir:


Span

m

7.5

10.5

13,5

16,5

19.5

22.5

25,5

Stærð

t

1 ~ 12.5t

Heildarþyngd

kg

1781 ~ 12086

Vagnarþyngd

kg

405 ~ 740

Max. Hjólálag

kn

13,5 ~ 90,94

Ferðalög

P24 ~ P43

Lyftihraði

m / mín

0,8 / 5

0,8 / 5

0,8 / 5

0,8 / 5

0,8 / 5

0,8 / 5

0,8 / 5

Lyftihæð

m

≥ 6

≥ 6

≥ 6

≥ 6

≥ 6

≥ 6

≥ 6

Heildarorkuorka

kw

4,31

4,31

4,31

4,31

4,67

4,67

4,67

Kranhraði

m / mín

3-30

3-30

3-30

3-30

3-30

3-30

3-30

Trolley hraði

m / mín

2-20

2-20

2-20

2-20

2-20

2-20

2-20

Vinnuskylda

M5 / A5



包装运输.jpg

inquiry